Gemeindehaus mit Pfarrbüro, Sakristei und Kita St. Elisabeth Ulm

Konkurrierendes Planungsverfahren 2017 Ausführung: 2019 - 2021 Standort: Ulm Bauherr: Katholische Kirchengemeinde St. Elisabeth, Siedlungswerk Stuttgart Hugo-Häring-Auszeichnung Ulm 2023 polis AWARD 2024 - Nominierung in der Kategorie “Intelligente Nachverdichtung” Fotografie: Werner Huthmacher

Rund 100 Jahre nach Grundsteinlegung der Kirche St. Elisabeth findet die Einweihung des zugehörigen Gemeindehauses statt – benannt nach Papst Johannes XXIII., Angelo Guiseppe Roncalli, der trotz seines hohen Alters begann, neue Wege zu gehen und voller Mut die Kirche zu erneuern. Der Name Roncalli scheint wie geschaffen für das neue „Haus mitten in der Welt“, wie Dekan Ulrich Kloos es nennt, steht er doch für Dynamik und Aufbruch und ein Denken, das seiner Zeit in vielen Bereichen weit voraus war.

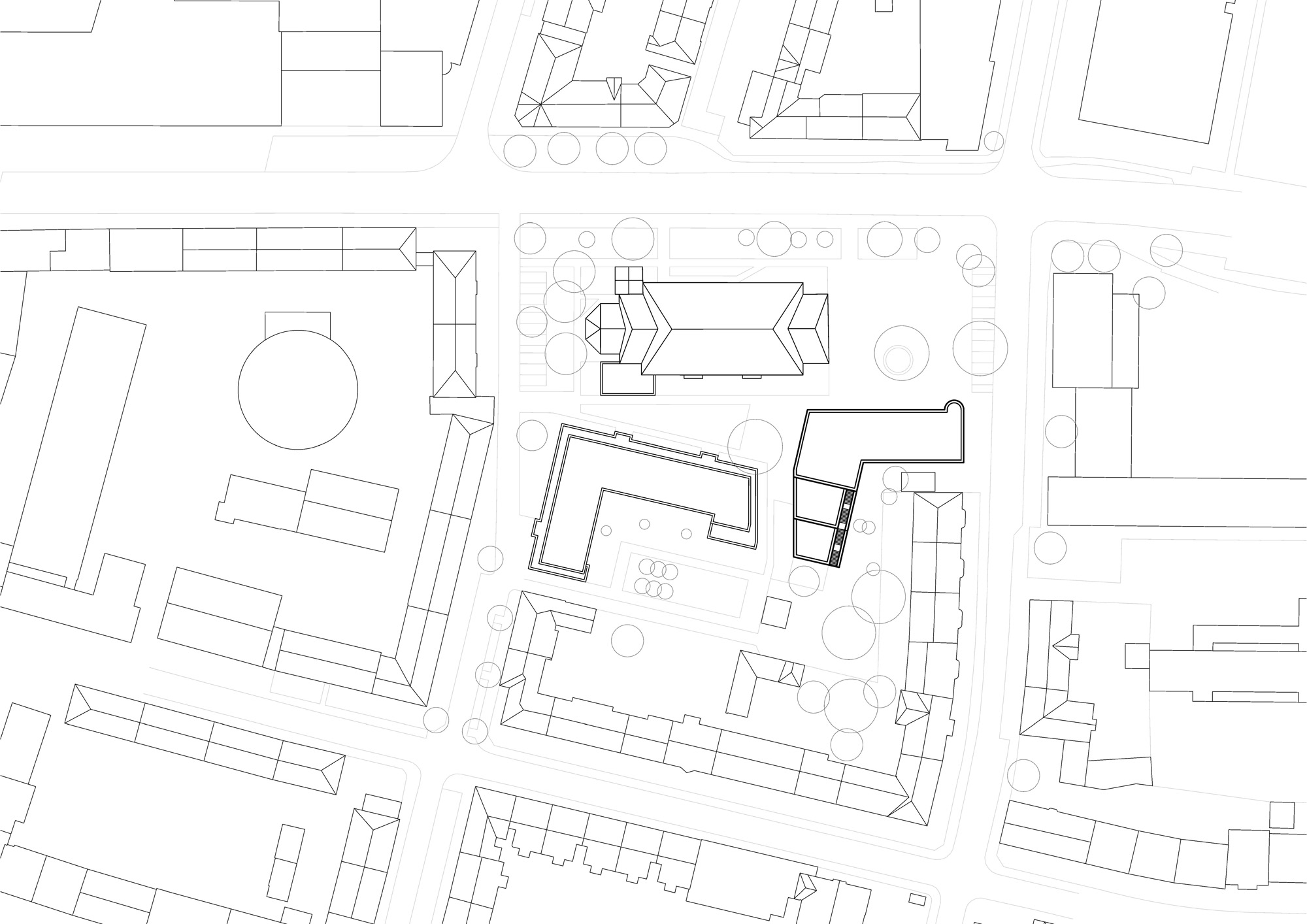
Es sollte eine Gesamtlösung für das Gemeindehaus, den Kindergarten und das Pfarrbüro gefunden werden, die sich nur in einem Neubau realisieren ließ. Dies ging einher mit der Verkleinerung von Flächen und Kubaturen und dem Abriss der sehr in die Jahre gekommenen KiTa und des bisherigen Gemeindehauses. Der neue Entwurf des Kirchenareals mit Gemeindehaus, Sakristei, Pfarrbüro, Veranstaltungsräumen und Kindergarten sollte eine Belebung und die Einbeziehung des gesamten städtischen Quartiers nach sich ziehen. Auf dem verkauften Teil des Grundstücks wurde vom Siedlungswerk ein Geschosswohnungsbau mit Miet- und Eigentumswohnungen für Menschen aus allen Kreisen der Gesellschaft realisiert. Großzügig gestaltete Freianlagen ergänzen das Gesamtensemble. In diesem Zusammenhang erfuhr auch die Um- und Neugestaltung des Vorplatzes der Kirche eine wichtige Bedeutung.